Аренда коммерческого помещения СПб, Пушкинский р-н, Шушары пос., Старорусский просп., д. 8 корп. 1
Стоимость аренды
200000
руб./месяц
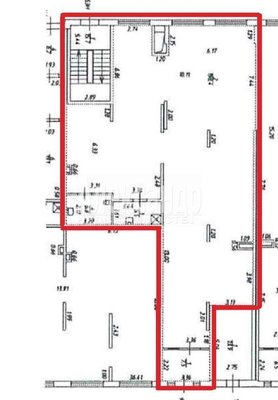
1692727 Аренда помещения без комиссии для арендатора, расположенного в г. Санкт-Петербург, пос. Шушары, Пушкинский район на Старорусском пр. д 8, к 1 строение 1., в ЖК «Алексеевский квартал», комплекс состоит из восьми 14-этажных домов, количество квартир 3532. в доме 1200 квартир с полной отделкой, в доме напротив 750 квартир (уже заселяется). Вокруг построено много других жилых комплексов с уже сложившейся инфраструктурой, рядом будет школа, детский сад.
Густонаселенный, развивающийся, активно застраиваемый район, за последние 12 лет численность населения выросла практически в два раза и продолжает увеличиваться, что повышает потребительскую способность. Первый этаж, второе помещение от угла. Преимуществом помещения является расположение напротив входа в Пятерочку, что увеличивает количество потенциальных покупателей. Подходит под любой вид деятельности. Площадь: 218,2 кв.м. 25 кВт Высота потолков 3,60 м Витрины (3 окна выходят во двор) Вход с улицы напротив входа в Пятерочку Без ремонта Предоставляются арендные каникулы Место под размещение рекламной вывески Есть парковка Арендная ставка на первый год 200 000 рублей + КУ, далее по договоренности. В доме уже работают: Мини Лента, Красное Белое, Магазин фермерских продуктов, Кафе Кебаб 24. Звоните! #8641309# Общая стоимость: 200000 руб./месяц Этаж/этажность: 1/14 Агентам: Не звонить |
2143533 25 Июня 2024 просмотров 183 |
Добавить комментарий
Похожие объявления



















